[tintuc]
Cửa Đi Mở Nhôm Hondalex Hệ LV56
- Bề rộng khung nhôm: 56 mm
- Kính sử dụng: 5 ~ 16 mm
- Hợp kim nhôm: 6063S-T5
- Tiêu chuẩn: Công nghệ Nhật Bản JIS H4100, JIS H8601, JIS H8602
- Phạm vi sử dụng: Nhà phố, biệt thự, chung cư, cao ốc văn phòng
Đồng thời, vật liệu thân thiện với môi trường ứng dụng trong công trình cũng được chú ý đến trong những năm gần đây vì sự biến đổi của khí hậu, ô nhiễm không khí…
Nhôm Hondalex là dòng nhôm Nhật Bản, áp dụng công nghệ độc quyền Tuyakeshi để đảm bảo bề mặt nhôm không bị ăn mòn, chống sự tác động của muối biển, hóa chất… Đồng thời kết hợp cùng công nghệ anod tạo vẻ đẹp khác biệt cho không gian sinh hoạt.
Cửa đi mở là gì?
Sự phổ biến của cửa đi mở trong các công trình dân dụng được minh chứng thông qua công năng sử dụng, kết cấu vững chắc của hệ cửa nhôm kính Hondalex BANKO
Nhôm và kính cùng với phụ kiện anod đồng bộ được kết hợp với nhau để tạo nên kết cấu của đi. Mỗi bộ phận sẽ đảm nhiệm một chức năng khác nhau. Tay nắm với khóa giúp bảo vệ không gian, bản lề giúp việc mở cửa dễ dàng hơn, gioăng, lông nheo giúp cánh cửa không bị va đập mạnh khi trời có gió…
Ưu điểm nổi bật
Mỗi hệ cửa sẽ có những điểm khác biệt, hình dáng khác nhau để khách hàng dễ dàng nhận biết và sử dụng. Đồng thời, giá trị và ưu điểm chính là điểm nhấn chính giúp khách hàng lựa chọn sản phẩm.
Những ưu điểm vốn có của cửa đi mở nhôm kính hệ 56:
- Hệ cửa thông dụng, phù hợp với nhiều kiến trúc khác nhau.
- Đa dạng về thiết kế
- Bề mặt hoàn thiện, bền đẹp.
- Linh hoạt trong thiết kế và kích thước.
- Thuận tiện cho việc bảo dưỡng và vệ sinh.
- Tiết kiệm điện năng.
- Tạo sự thông thoáng cho ngôi nhà.
- Bao quát tầm nhìn không gian bên trong và bên ngoài ngôi nhà.
- Không gian ngập tràn ánh sáng nhờ sự phản chiếu của kính.
- Sử dụng được nhiều loại kính đơn.
- Có tính cách âm, cách nhiệt, kín khí nhờ dòng phụ kiện cao cấp, đồng bộ.
- Đóng mở nhẹ nhàng, thuận tiện.
- Ngăn nước mưa vào nhà nhờ hệ gioăng khép kín và chốt.
- Sử dụng hợp kim nhôm đúng quy chuẩn.
- Áp dụng công nghệ thân thiện với môi trường vào trong quá trình sản xuất. Công nghệ xử lý bề mặt JIS H8601, JIS H8602 tạo lớp oxit và Tuyakeshi độc quyền lên bề mặt của thanh nhôm, bảo vệ thanh nhôm khỏi những tác nhân của thời tiết (nắng, mưa, muối…), co ngót, cong vênh, ngoại lực…
- Sản xuất dựa trên tiêu chuẩn kiểm soát chất lượng JIS H4100 tương đương với tiêu chuẩn ASTM B211M (Hoa Kỳ).
- Nhà máy sản xuất Hondalex sử dụng kim loại Niken tạo màu cho thanh nhôm, sử dụng công nghệ xử lý bề mặt thẳng đứng để kim loại Niken bám chắc vào cấu trúc của thanh nhôm tạo nên sự chắc chắn, bền bỉ hơn 50 năm với thời gian.
Lợi ích khi sử dụng
Có những lối kiến trúc chỉ phù hợp với một loại vật liệu, cửa đi. Tuy nhiên, với xu thế của việc phát triển của kiến trúc, cảnh quan hiện nay những vật liệu có tính ứng dụng cao cho nhiều công trình luôn là lựa chọn số một.
Vật liệu nhôm kính chính là giải pháp tuyệt vời, màu sắc trung tính ấm áp, sang trọng, có nhiều kiểu dáng phù hợp với mọi không gian.
Đồng thời, tính năng đa dạng của cửa đi nhôm kính hệ 56 nhôm cũng mang đến sự tiện lợi khi sử dụng, thích ứng với sự thay đổi của khí hậu.
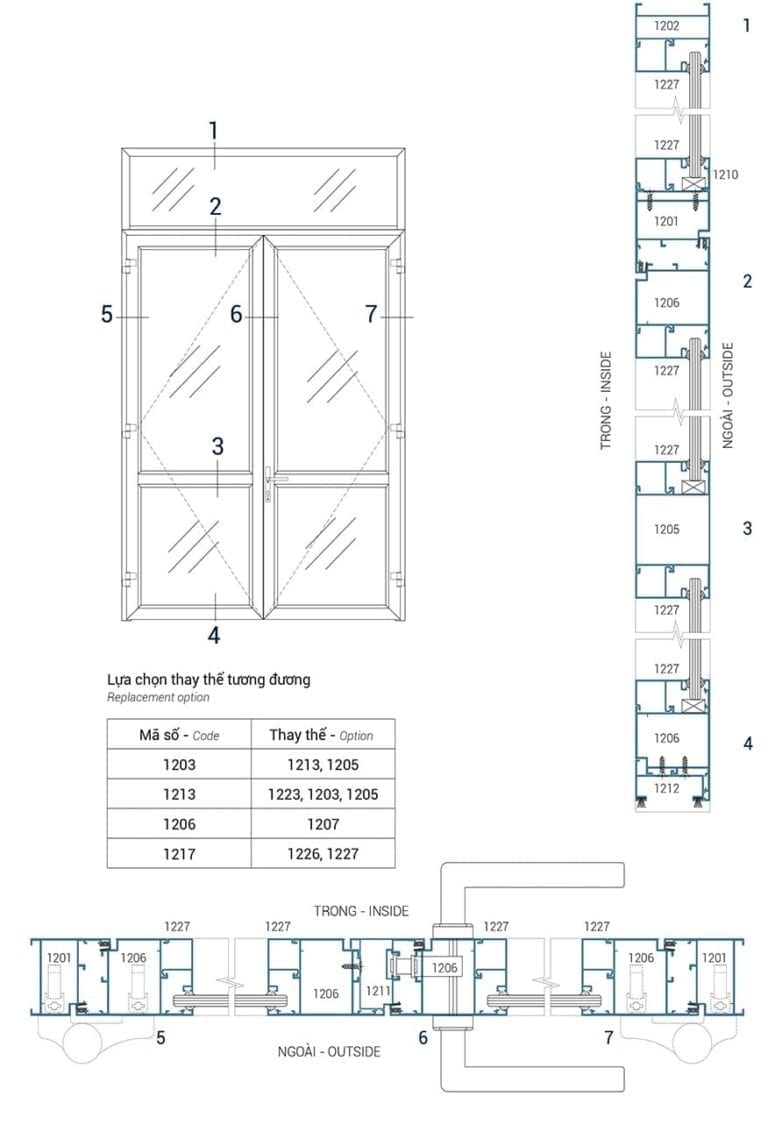
Mặt cắt và bản vẽ lắp đặt
Mặt cắt và bản vẽ lắp đặt cửa đi mở Hondalex hệ 56
Giá cửa đi lùa nhôm Hondalex hệ 56
Chi phí cho cửa đi mở nhôm kính hệ 56 phụ thuộc vào nhiều yếu tố khác nhau như hệ nhôm, vị trí, kích thước, số lượng, công nghệ… Hãy liên hệ với BANKO để được báo giá chính xác nhất.
Công ty TNHH Thương Mại BANKO
Trụ sở: 123/84 KP10, P.Tân Biên, Biên Hòa, Đồng NaiShowroom: 299F Lý Thường Kiệt, P.15, Q.11, TP. Hồ Chí Minh
VP miền Trung: 16 Trần Hữu Duẩn, P.Xuân Hòa, Q.Cẩm Lệ, Đà Nẵng
Tel: 0961.61.83.26
Hotline:0933.81.83.26 (Mr.Vũ)
Email: banko.com.vn@gmail.com / vunguyen.banko.com.vn@gmail.com
[/tintuc]
















Gọi Zalo